Pure.Sink Exclusivo Złota umywalka 1,5 z ociekaczem 100x52 cm Bateria lewa PEX3418100LT-60

Numer artykułu 1208972090
Pure.Sink Exclusivo Złota umywalka 1,5  z ociekaczem 100x52 cm Bateria lewa PEX3418100LT-60
2.995,99 zł 4.493,98 zł wł. 23% VAT
Darmowa dostawa
Zostało tylko kilka sztuk
Marka
Seria

Kolor zlewu Wariacje

Pozycja dużej skrzyni Wariacje

Prawo Lewo
214.000+ zadowolonych klientów
Darmowa dostawa od 850 zł
Łatwy zwrot w ciągu 30 dni
Przyjazne dla środowiska opcje dostawy
Kolorowy
Odporny na ciepło
Odporny na szoki termiczne
Jakość z UE
Wszystko o tym produkcie
Informacje o produkcie

Pure.Sink Exclusivo Złoty 1,5 zlew z ociekaczem 100x52 cm Bateria lewa PEX3418100LT-60

Zlewozmywak Pure.Sink Exclusivo oferuje luksusowy wygląd i wszechstronność dla każdej kuchni. Główna komora zapewnia wystarczającą ilość miejsca do codziennego użytku, a półkomora idealnie nadaje się do płukania sztućców, warzyw lub mniejszych przyborów kuchennych. Dzięki uniwersalnej konstrukcji zlewozmywak ten nadaje się do montażu wpuszczanego i natynkowego, co zapewnia maksymalną elastyczność instalacji. Zintegrowana część ociekowa i promień 10 mm zapewniają płynną konstrukcję, a wytrzymałe materiały gwarantują długotrwałą wydajność.

Cechy:

  • Kolor: złoty
  • Konstrukcja: gładkie, płaskie dno
  • Higieniczny i praktyczny: łatwy do utrzymania w czystości i wolny od gromadzenia się brudu
  • Materiał: wysokiej jakości stal nierdzewna 18/10
  • Krawędź: idealnie nadaje się do montażu płaskiego dzięki płaskiej krawędzi o grubości 1 mm
  • Montaż: Nadaje się również do montażu natynkowego
  • Część ociekowa: praktyczna część ociekowa zapewnia dodatkową przestrzeń do ociekania naczyń, idealna do utrzymania porządku w miejscu pracy.
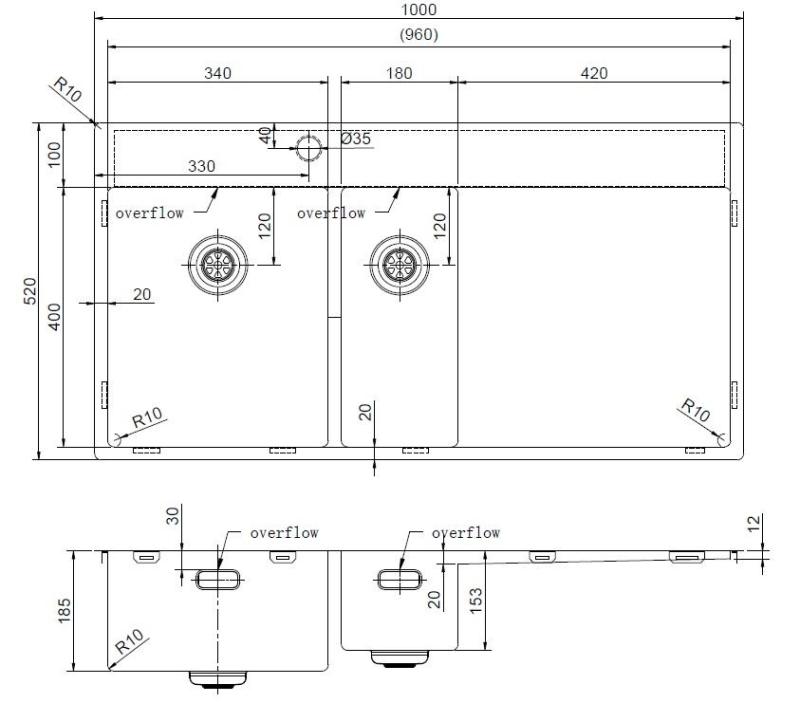
  • Wymiary:
    • Zlew: 340 x 400 / 180 x 400 mm
    • Całkowite wymiary: 100 x 52 cm
    • Głębokość zlewu: 185 / 153 mm
  • Promień wewnętrzny: 10 mm dla nowoczesnego wyglądu i łatwej konserwacji
  • Odpływ: zintegrowany odpływ zapobiega gromadzeniu się resztek jedzenia
  • Precyzyjnie spawane zlewozmywaki, które łączą w sobie estetykę bezszwową z wyjątkową trwałością — zaprojektowane z myślą o idealnym, nowoczesnym wykończeniu kuchni.
  • Gwarancja: 5 lat gwarancji fabrycznej

Akcesoria:

  • W zestawie Złoty korek koszowy
  • Przelew Easyclean
  • Zaciski montażowe
  • Szablon do zlewu, umożliwiający precyzyjne, estetyczne i bezpieczne wycięcie otworu

Ta umywalka Pure.Sink Exclusivo oferuje elastyczne możliwości montażu: montaż płaski lub natynkowy. Elegancki design z wbudowaną półką na naczynia dodaje styl i funkcjonalność Twojej kuchni.

Niezależnie od tego, czy gotujesz codziennie, czy dla większej grupy osób, zlewozmywak Pure.Sink Exclusivo łączy w sobie trwałość, styl i łatwość użytkowania, idealnie nadając się do wymagających kuchni. To doskonały wybór dla osób poszukujących ponadczasowego i solidnego rozwiązania.

Specyfikacje
Marka Pure.Sink
Kolor Złoto
Wysokość 185mm
Seria Exclusivo
Wykonanie Nablatowy
Wykonanie Na równi
Gwarancja 5 lat
Materiał Stal nierdzewna
Minimalny rozmiar szafki 70cm
Liczba pojemników 1.5
Ociekacz Tak
Długość 520mm
Wycięcie długość 480
Szerokość 1000mm
Szerokość wycięcia 960
Promień 10
Głębokość 185/153mm
Liczba zlewów 1.5
Powłoka PVD
Klasa produktu Zlewozmywak
Kolor zlewu Złoto
Materiał Zlewozmywak Stal nierdzewna
Zlewozmywak Wymiar komory 340x400/180x400mm
Sposób montażu zlewozmywaka Nablatowy
Sposób montażu zlewozmywaka Na równi
Głębokość zlewu 185/153mm
Wymiar wycięcia Montaż płaski 1001x521mm
Wymiar wnęki Nadbudowa 980x500mm
Zlew Kranu 1
Zlewozmywak promień wewnętrzny 10mm
Zlewozmywak zewnętrzny promień 10mm
Zlewozmywak kształt Prostokąt
Korek automatycznego opróżniania Nie
Pozycja dużej skrzyni Lewo
Całkowita szerokość zlewu 1000mm
Całkowita długość zlewu 520mm
Wtyczka i kolor przelewu Złoto
Model zlewu Zlew 1,5-komorowy z ociekaczem
Informacje o dostawie
Większość naszych zamówień jest wysyłana różnymi przewoźnikami. Czasami korzystamy z innych przewoźników do dostarczania specyficznych zamówień lub do odciążenia głównych przewoźników, aby dotrzymać naszych obietnic dotyczących dostawy.

Oczekiwany czas dostawy jest zawsze wyświetlany na stronie produktu. Większość produktów, które mamy w magazynie, jest wysyłana tego samego dnia. Wieczorem przed dostawą otrzymasz informacje o śledzeniu z oknem czasowym na dostawę. Ważne: kierowcy naszych wybranych przewoźników dostarczają produkty do drzwi wejściowych na parterze.

Również w przypadku większych produktów, takich jak granitowe zlewozmywaki, duże delikatne zlewozmywaki, szafki itp., wieczorem otrzymasz kod śledzenia. Te produkty nie są dostarczane do sąsiadów i wymagane jest podpisanie, więc ktoś musi być w domu, aby odebrać produkt. Uwaga: te duże produkty nie są dostarczane w soboty!

Jeśli dostawa dużego produktu nie powiedzie się za pierwszym razem, przewoźnik skontaktuje się z tobą za pośrednictwem e-maila lub SMS-a, aby wysłać ci harmonogram, abyś mógł wybrać moment, kiedy będziesz w domu.

Dodatkowe opłaty za dostawę w wysokości od 30 € do 100 € dotyczą przesyłek na wyspy, ze względu na dodatkowe koszty logistyczne, takie jak transport wodny i ograniczona dostępność, a także obowiązują dodatkowe opłaty za transport paletowy kruchych i cięższych produktów.
Pielęgnacja i konserwacja zlewozmywaków ze stali nierdzewnej

Regularne czyszczenie: Codziennie czyść ciepłą wodą z mydłem i miękką ściereczką, a następnie dokładnie wysusz.

Podążaj za kierunkiem słojów: zawsze wycieraj w kierunku słojów stali, aby zapobiec powstawaniu mikro zarysowań.

Cotygodniowe polerowanie: Aby uzyskać dodatkowy połysk, użyj łagodnego kremowego środka czyszczącego i ściereczki z mikrofibry.

Usuwanie kamienia: Natychmiast usuń kamień mieszanką ciepłej wody i octu w proporcji 50/50.

Materiały ścierne: Unikaj wełny stalowej, ściereczek do szorowania lub ściernych środków czyszczących. Powodują one trwałe zarysowania.

Kwaśne produkty spożywcze: Nie pozostawiaj soli, octu ani cytrusów na powierzchni. Mogą one powodować powstawanie wżerów.

Silne środki chemiczne: Nie używaj wybielaczy, amoniaku ani środków czyszczących na bazie chloru.

Plastikowe miski do mycia naczyń: Nie używaj ich w zlewie. Z czasem drobne cząsteczki plastiku osadzają się na powierzchni.

Informacje o producencie Pure.Sink
Pure.Sink

Pure.Sink łączy styl, funkcjonalność i innowacyjność w swojej kolekcji zlewów i baterii kuchennych. Dzięki eleganckiemu europejskiemu designowi produkty doskonale pasują do nowoczesnych kuchni. Zlewy ze stali nierdzewnej wyposażone są w zintegrowany korek dla maksymalnej higieny oraz oferują trzy opcje montażu: podblatowy, na równi z blatem i wpuszczany. Konstrukcja tłoczona zapewnia bezszwowe wykonanie i łatwe czyszczenie.

Baterie kuchenne ze stali nierdzewnej wyposażone są w wysokiej jakości perlatory Neoperl i mechanizmy Sedal, co gwarantuje trwałość i idealny strumień wody. Wybierz Pure.Sink, aby podnieść standard swojej kuchni!

Zalety i wady

Według naszego najlepszego specjalisty

Warstwa wierzchnia odporna na ścieranie i zarysowania

Kolory nie blakną szybko
Odporny na utlenianie i plamy
Trwalszy niż kolor natryskiwany

Twarde woda może powodować plamy

Nie każdy środek czystości jest odpowiedni

Our top specialist

Akcesoria

Inspiracje kuchenne 2026: style oraz idealne połączenia zlewozmywaków i baterii

W najnowszych projektach kuchni najważniejsze jest wrażenie, jakie wywołują. Spokój, ciepło i naturalne materiały nadają ton, a funkcjonalność jest płynnie wkomponowana w projekt.

Czy masz firmę?

Uzyskaj dostęp do ekskluzywnych korzyści B2B!

Poproś o swoje konto B2B
42 zł Zniżka
Dołącz do społeczności Loriano dla miłośników udoskonalania domu
Gotowy/a na kontakt i ekskluzywne treści? Nasz newsletter dostarcza pomysły na styl, przewodniki projektowe, wcześniejszy dostęp do wyprzedaży oraz pierwsze spojrzenia na nowe produkty. Zapisz się teraz i od razu odbierz powitalny kupon o wartości 42 zł!

Wybierz swój kraj:
Bank transfer Card Apple Pay Google Pay Przelewy24 Blik
Loriano.pl | Copyright 2006 - 2026 | Wszelkie prawa zastrzeżone | Ciasteczka